Tanjung Bungah
Lintang Lembah Permai, 11200, Penang
RM 2,580,000
4+1
BT
5
BM
1,920
kps (tanah)
RM 1,344
psf (tanah)
Tentang hartanah ini
Fully Renovated & Furnished Permai Garden with Back Garden for Sales
ery nicely renovated and furnished Permai Garden near Tenby International School at Tanjung Bungah for Sales.
Gated and Guarded with swimming pool, gym, etc.
Extra back garden for this unit which is rare in the market.
Gated and Guarded with swimming pool, gym, etc.
Extra back garden for this unit which is rare in the market.
Kemudahan
Balcony
Garage
Private garden
Kemudahan bersama
24-hour security
Bbq
Business centre
Clubhouse
Anggaran Pinjaman Gadai Janji
Perincian Pinjaman Gadai Janji
Anggaran Bayaran Balik Bulanan
RM 0 / bulanan
RM 0 Prinsipal
RM 0 Faedah
Kos Pendahuluan
Jumlah Bayaran Pendahuluan
RM 0
Bayaran Pendahuluan
RM 0 Jumlah Pinjaman dari 0% nilai pinjaman
Soalan Lazim
Harga jualan ialah RM 2,580,000.
Lintang Lembah Permai, 11200, Penang.
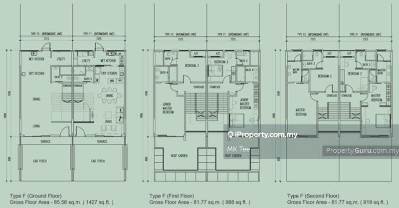
Saiz lantai unit ini ialah 3,334 kps.
Freehold.
Servis LoanCare kami boleh membantu meningkatkan kebarangkalian permohonan pinjaman perumahan anda diluluskan.


















