Bay Suites, Kota Kinabalu
Jalan Istiadat, 88400, Sabah
RM 422,000
2
BT
2
BM
684
kps (lantai)
RM 617
psf (lantai)
Tentang Bay Suites
Bank Lelong
BANK LELONG 银行拍卖 :
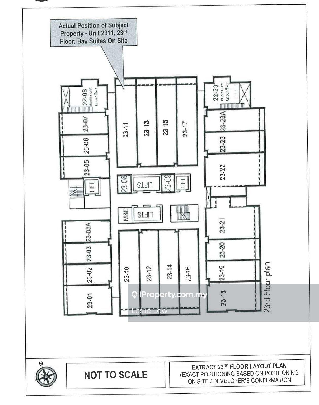
DBKK Unit No.23-11, Level 23, Bay Suites, Lorong Bayu, Off Jalan Istiadat, Kota Kinabalu, Sabah.
Size : 684 sqft
2 bedrooms, 2 bathrooms
Lelong Price : RM422k
Market Value : RM600k
Lelong Date : November 2025
Follow address go see property OUTSIDE only.
Need to have 5% downpayment to prepare Bank Draft.
This is a BIDDING Auction. Whoever highest is the winner.
Call Lelong King 拍卖王 LESLIE LOW O16 2O6 8O88
DBKK Unit No.23-11, Level 23, Bay Suites, Lorong Bayu, Off Jalan Istiadat, Kota Kinabalu, Sabah.
Size : 684 sqft
2 bedrooms, 2 bathrooms
Lelong Price : RM422k
Market Value : RM600k
Lelong Date : November 2025
Follow address go see property OUTSIDE only.
Need to have 5% downpayment to prepare Bank Draft.
This is a BIDDING Auction. Whoever highest is the winner.
Call Lelong King 拍卖王 LESLIE LOW O16 2O6 8O88
Anggaran Pinjaman Gadai Janji
Perincian Pinjaman Gadai Janji
Anggaran Bayaran Balik Bulanan
RM 0 / bulanan
RM 0 Prinsipal
RM 0 Faedah
Kos Pendahuluan
Jumlah Bayaran Pendahuluan
RM 0
Bayaran Pendahuluan
RM 0 Jumlah Pinjaman dari 0% nilai pinjaman
Soalan Lazim
Harga jualan ialah RM 422,000.
Jalan Istiadat, 88400, Sabah.
Saiz lantai unit ini ialah 684 kps.
Leasehold.
Servis LoanCare kami boleh membantu meningkatkan kebarangkalian permohonan pinjaman perumahan anda diluluskan.






















