The Mews, KLCC, KL City Centre
Jalan Yap Kwan Seng, KLCC, 50450, Kuala Lumpur
RM 1,500,000
2+1
BT
2
BM
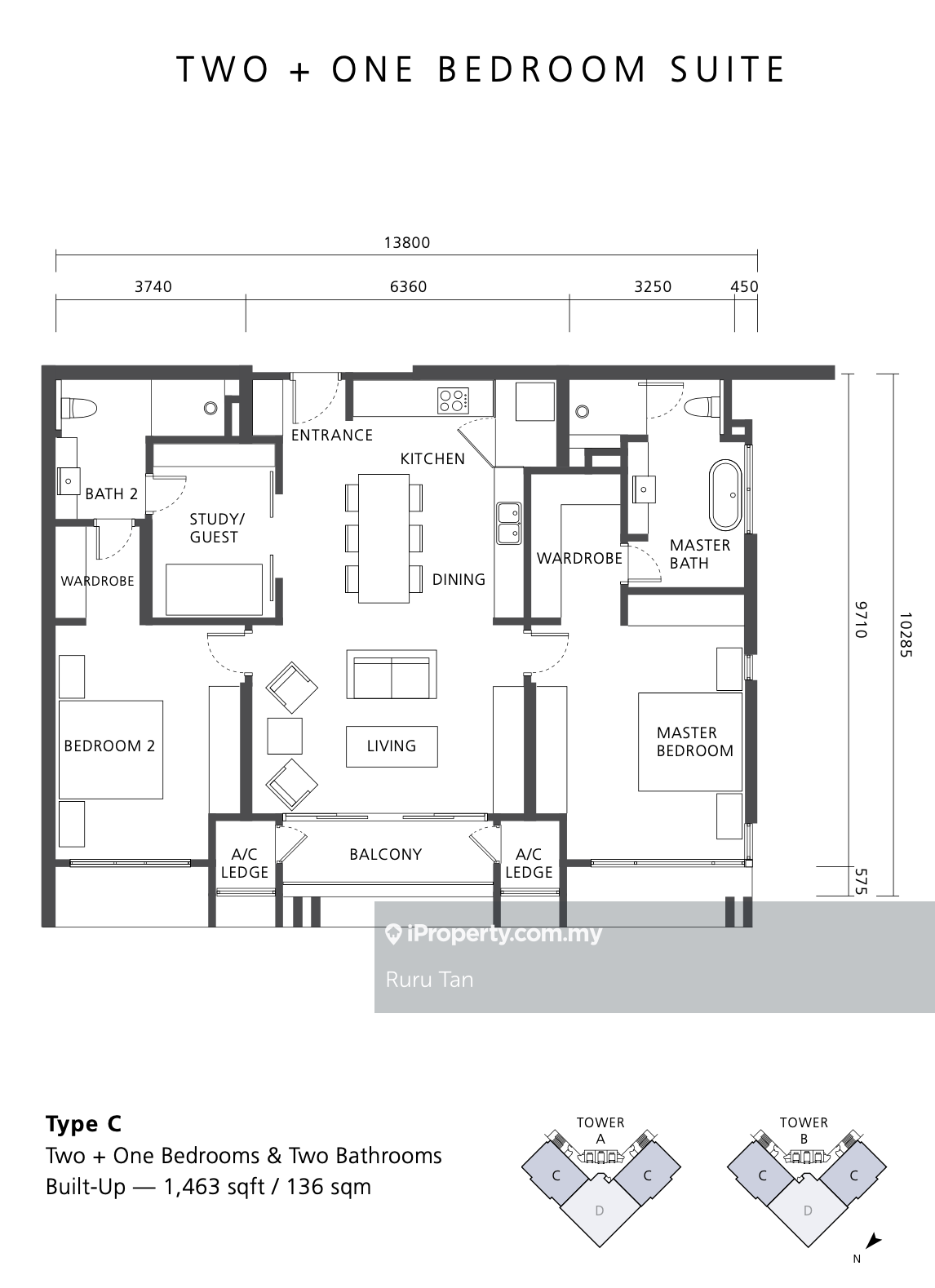
1,463
kps (lantai)
RM 1,025
psf (lantai)
Tentang The Mews
The Mews KLCC
Kemudahan
Balcony
Kemudahan bersama
24-hour security
Gym
Playground
Squash court
Anggaran Pinjaman Gadai Janji
The Mews, KLCC, KL City Centre
The Mews is a freehold serviced residence located right at the heart of the Kuala Lumpur City Centre, an upscale neighbourhood along the bustling Jalan Yap Kwan Seng.Jointly developed by the renowned Eastern & Oriental Berhad (E&O) and Mitsui Fudosan Residential Co. Ltd, the former is the developer behind the swish and elegant St Mary Residences, Dua Residency and Penang Straits Quay, while the latter is a construction giant in Japan with proven track records.Completed in 2017, the said development encompasses two 38-storey tower blocks that house 256 residential units in total, with built-up sizes ranging from 923 sq ft to 2,619 sq ft.Type A - 923 sq ft 1 bedroom + 1 bathroomType B1 - 271 sq ft 2 bedrooms + 2 bathroomsType C1 - 459 sq ft 2+1 bedrooms + 2 bathroomsType D2 - 059 sq ft 3+1 bedrooms + 3+1 bathroomsType E1 (Penthouse)2 - 417 sq ft 3+1 bedrooms + 4+1 bathroomsType E2 (Penthouse)2 - 619 sq ft 3+1 bedrooms + 4+1 bathroomsThis development aims to provide its residents with 5-star facilities and hospitality services. Apart from some of the common facilities like a swimming pool, wading pool and gymnasium, the development also brags its saltwater hydro spa pool, bio fish pond, children’s playground with a residents’ lounge and squash court. The rooftop terraces and landscaped gardens on the 37th floor offer a spice garden, BBQ corner, recreational park and dining area with an observation deck.Secured with the round-the-clock multi-tier security system, The Mews also provides its residents concierge services, WiFi broadband connections in all common areas as well as shuttle services around the KLCC locale.Situated in a prime location in Kuala Lumpur, this property is close to the city’s Golden Triangle which is largely made up of shopping districts, dining outlets and entertainment hot spots. This area is home to the Intermark Mall (800m), Suria KLCC (850m), Avenue K (900m), Pavilion Kuala Lumpur (2km), The Weld (2km) and Starhill Gallery (2km). In the vicinity, there are also the world-renowned Petronas Twin Towers (800m), Petronas Art Gallery (850m), KLCC Park (2km), Petronas Philharmonic Hall (2km) and Royal Selangor Golf Club (2km).Jalan Yap Kwan Seng where the property is located is connected to other two main roads, Jalan Tun Razak and Jalan Ampang respectively, and are further linked to the Ampang-Kuala Lumpur Elevated Highway (AKLEH), SMART Tunnel, Jalan P.Ramlee and Jalan Sultan Ismail. The area is also well-served by the GOKL city buses and taxis.The nearest bus lines: Bus 220, 300, 302 and 402The nearest LRT lines: KLCC LRT, Ampang Park LRT, Kampung Baru LRT, Damai LRTThe nearest MRT lines: Ampang Park MRT, Persiaran KLCC MRT, Conlay MRTThe nearest monorail lines: Bukit Nanas Monorail, Raja Chulan MonorailThis property is located within proximity to the Optopreneur College (700m), UniRazak (900m), Raffles College of Higher Education (1km) and Kuala Lumpur Metropolitan University College (3km). Nearby schools also include SK Jalan Raja Muda (1km), SJK (T) Fletcher (3km) and SMK Puteri Titiwangsa (3km).There are several reputable hospitals, both public and private, located around the locale, including the Twin Towers Medical Centre (1km), Institut Jantung Negara - IJN (1km), Prince Court Medical Centre (2km), Hospital Kuala Lumpur - HKL (2km) and Gleneagles Kuala Lumpur (3km).Foreign embassies are within minutes’ drive away such as Australia, America, Chinese, France, Belgium, Japan, British and the Republic of Korea, just to name a few.Updated on 16-Aug-2022
Lihat butiran projek













