20trees, Taman Melawati, Ulu Kelang
- Jalan 203D, Taman Melawati, 53100, Selangor
RM 900,000
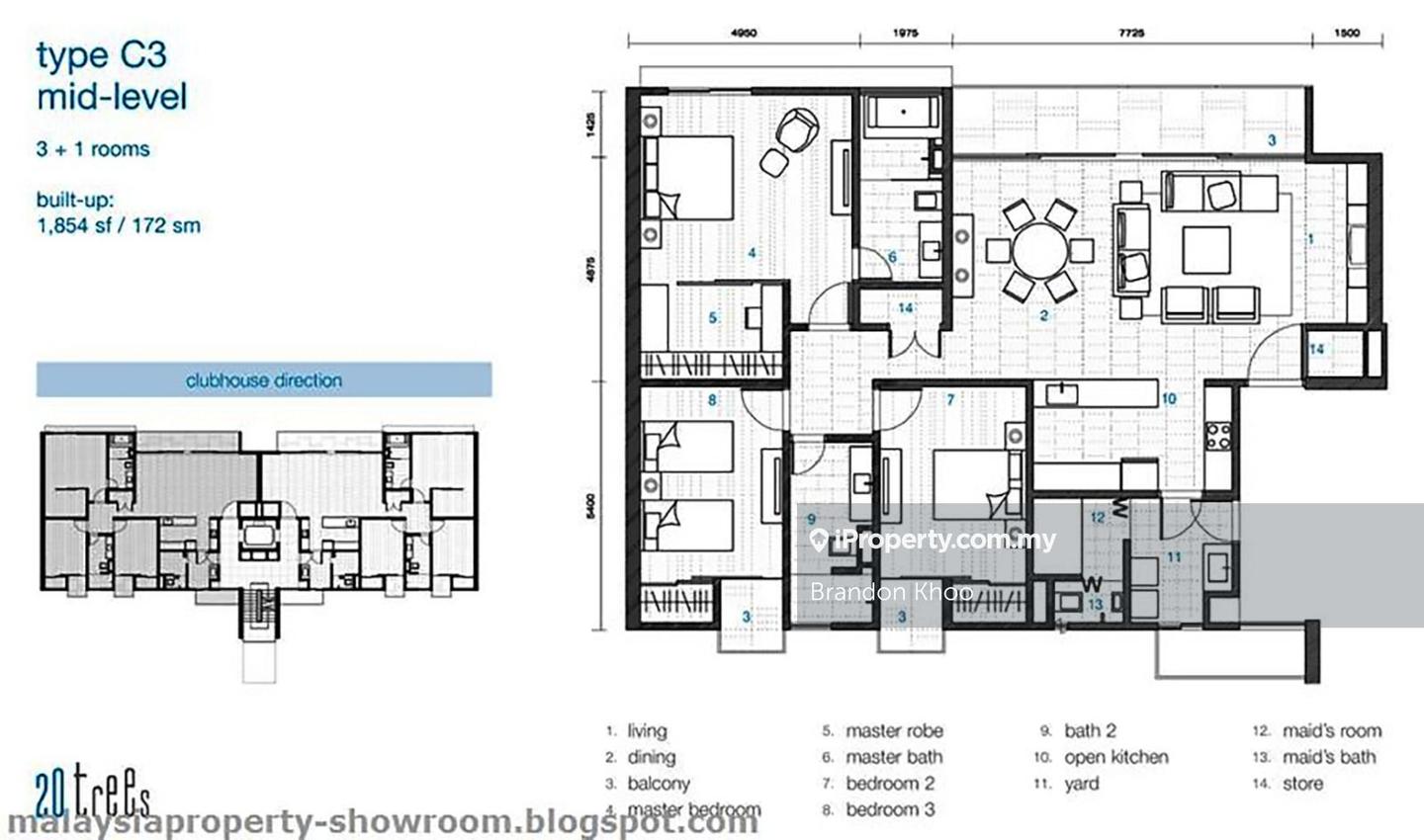
3+1
Beds
2
Baths
1,853
sqft (floor)
RM 486
psf (floor)
Photos
Map View
About 20trees
20 Trees Melawati Renovated Freehold Ground Floor
Freehold
Level 4
Build up : Approx 1850 Sqft
3 rooms, 2+1 bathrooms
2 car parks (Directly on Ground Floor)
Fully Furnished
ASKING RM900k
Please contact Brandon OI6 3II 6976 for viewing arrangement
++6016--3II_69*76*
zero one six three one one six nine seven six
Amenities
24-hour access
Balcony
Car parking outside
Covered car parking
Common facilities
24-hour security
Bbq
Clubhouse
Gym
Estimated mortgage
20trees, Taman Melawati, Ulu Kelang
20trees is a freehold development located along with Jalan K5, Taman Melawati, Kuala Lumpur.This development was completed in the year 2010 by Selangor Dredging Berhad Properties (SDB Properties). The luxury residential development has a total of 118 units with built-up sizes ranging from 1,790 sq ft – 3,556 sq ft.There are terrace homes, garden homes and courtyard homes. The jewel in the crown is its courtyard homes. They are designed with a conventional Asian architecture with a modern twist. Each unit comes with a master bedroom and a guest room which has its own separated accessway providing privacy to both the owner and the guests.20trees are also designed with high ceilings and with full-height windows with balconies. Besides, it also comes with a car porch and a stylish designer kitchen. Meanwhile, the Garden homes are a bit smaller compared to the Courtyard homes. However, they also have a private garden.20trees is boasted with its lush greeneries surrounding. One of its highlights is the breathtaking 760 sq ft inner garden. It is definitely a sight to behold with its designer landscape abounding with shady trees and beautiful flowers. There are also many benches scattered all around for those who are taking a stroll outdoor within the gated community.Despite being located away from the city centre, it is not too far away from the many public amenities. Everything is easily available within a stone’s throw away such as banks, mosques, churches, petrol stations, convenience stores, restaurants, cinema and shopping malls. The nearest mall will be Melawati Mall which is just 3.8km drive away. Other than that, KL East Mall (6.1km) and Setapak Central Mall (6.7km) are also nearby.Although it is situated on a hillside, 20 Trees is connected via major roads and highways such as MRR2, Ampang Elevated Highway, DUKE Highway and Jalan Ampang. Public transportation is also easily available in the area such as taxis, buses and trains.The nearest LRT stations: Sri Rampai LRT, Wangsa Maju LRT, Taman Melati LRT, Gombak LRTResidents who have schooling children do not have to worry as there are many educational institutions to enrol such as SK Wangsa Jaya (4.0 km), SK Wangsa Melawati (4.3 km) and The International School of Kuala Lumpur (11 km), all in just a short distance away from the residence.There are also many healthcare institutions around 20 Tree. They are Klinik Desa Hulu Kelang (3.6 km), Hospital Wanita dan Kanak-kanak Naluri (4 km), Rampai Puteri Medical Centre (6 km), Klinik Kesihatan Setapak and Columbia Asia Hospital (9 km). Residents in 20 Tree do not have to worry of traveling far to get medical services.Lastly, residents in 20trees can enjoy various facilities such as 24-hour security, BBQ pits, club house with yoga and pilates room, gymnasium, jogging track, parking, playground, sauna, a 50-metre infinity pool, jacuzzi, wading pool and tennis court. Furthermore, there is also an audio intercoms for buzzing staff and in case of any emergency, a panic button can be found in the master bedroom. 20trees is definitely a place for those who are looking for a quiet and relaxing residential area. Updated on 20-Oct-2022
View project details















