Alam Perdana, Puncak Alam
No.77, Jalan Rentak 1/6, Rentak Perdana, LBS Alam Perdana, Bandar Puncak Alam, Selangor, Alam Perdana, 42300, Selangor
RM 338,000
4
Beds
3
Baths
1,200
sqft (land)
RM 282
psf (land)
About this property
Bank Lelong
BANK LELONG :
No.77, Jalan Rentak 1/6, Rentak Perdana, LBS Alam Perdana, Bandar Puncak Alam, Selangor.
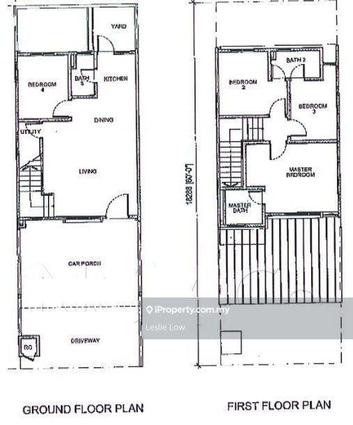
2-storey terrace house
Land Size : 1200 sqft (20' x 60')
Build-up : 1420 sqft
4 bedrooms, 3 bathrooms
Chinese owner
Gated & Guarded
Lelong Price : RM338k
Market Value : RM500k
Lelong Date : 23/10/2025
Follow address go see property OUTSIDE only.
Need to have 10% downpayment to prepare Bank Draft.
This is a BIDDING Auction. Whoever highest is the winner.
Call Lelong King 拍卖王 LESLIE LOW O16 2O6 8O88
No.77, Jalan Rentak 1/6, Rentak Perdana, LBS Alam Perdana, Bandar Puncak Alam, Selangor.
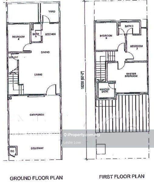
2-storey terrace house
Land Size : 1200 sqft (20' x 60')
Build-up : 1420 sqft
4 bedrooms, 3 bathrooms
Chinese owner
Gated & Guarded
Lelong Price : RM338k
Market Value : RM500k
Lelong Date : 23/10/2025
Follow address go see property OUTSIDE only.
Need to have 10% downpayment to prepare Bank Draft.
This is a BIDDING Auction. Whoever highest is the winner.
Call Lelong King 拍卖王 LESLIE LOW O16 2O6 8O88
Common facilities
24-hour security
Playground
Estimated mortgage
Mortgage breakdown
Est. monthly repayment
RM 0 / mo
RM 0 Principal
RM 0 Interest
Upfront costs
Total downpayment
RM 0
Downpayment
RM 0 Loan amount at 0% Loan-to-value
FAQs
The selling price is RM 338,000.
No.77, Jalan Rentak 1/6, Rentak Perdana, LBS Alam Perdana, Bandar Puncak Alam, Selangor, Alam Perdana, 42300, Selangor.
This floor size of this unit is 1,420 sqft.
Leasehold.
Our LoanCare service can help you increase your chances of home loan approval.

























