PRIME Hilltop Land @ Bukit Tinggi, Bentong – JV / Outright Sale, Bentong
Bentong, Pahang
RM 35,000,000
3.49
acre
RM 230
psf
Photos
Map View
About PRIME Hilltop Land @ Bukit Tinggi, Bentong – JV / Outright Sale
Prime Hilltop Land @ Bukit Tinggi, Bentong – Jv/ Outright Sale
KM & Building Plan Approved | Ready-to-Launch Development
Property Type: Commercial Land (Service Apartment Development)
Tenure: Freehold
Land Size: 3.497 Acres
Land Category: Mixed Commercial
Title: Individual
DEVELOPMENT STATUS
KM Approved (Plot Ratio 1:4)
Building Plan Approved
Development Planning Completed
Earthwork Completed
Piling & Pile Caps Completed
Ready for Immediate Construction
DEAL STRUCTURE
Joint Venture (JV):
* Landowner entitlement: 25% of total residential units
* Plus scalable commercial units / areas
Outright Sale Price:
RM 35,000,000
Sale includes development planning, KM & building plan approvals, completed earthwork, piling & pile caps.
DEVELOPMENT POTENTIAL
Total GFA:
Residential: Approx. 572,456 sq. ft.
Commercial: Approx. 19,670 sq. ft.
Total Units:
368 Residential Units
10 Commercial Retail Units
Residential Breakdown:
* 190 Units – 2-Bedroom (996 sq. ft.)
* 171 Units – 4-Bedroom Dual-Key (1,213 sq. ft.)
* 7 Units – Luxury Penthouses (Up to 4,122 sq. ft.)
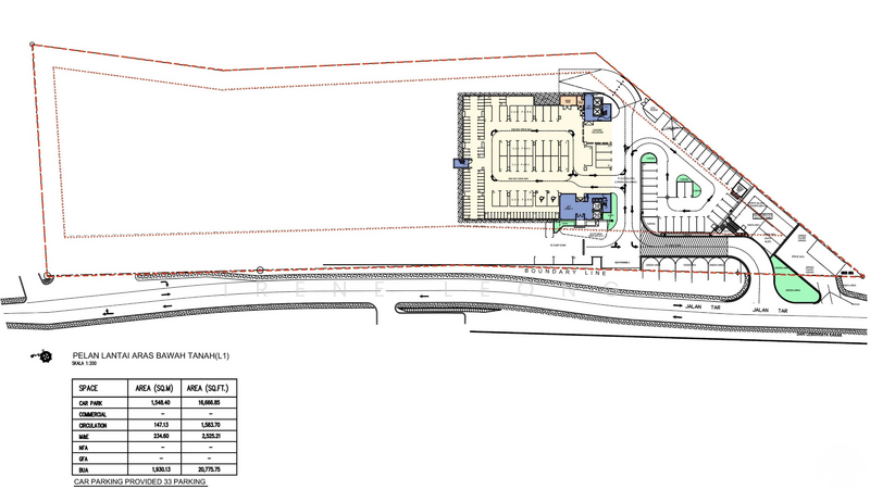
Car Parks: 829 lots (including tandem)
PRIME LOCATION – BUKIT TINGGI, BENTONG
* 35 mins to Kuala Lumpur via Karak Highway
* 5 mins to Bukit Tinggi Morning Market
* 10 mins to Janda Baik
* 20 mins to Genting Sky Avenue
* Near Bentong Tanglir Waterfall & Suria Hot Spring
INVESTMENT APPEAL
A rare ready-to-develop hilltop site with approvals and groundwork completed, offering immediate project rollout and strong ROI potential.
Contact: Irene 0***** | www.h*****
Welcome Owner Listing, if you have property for sale or rent.
Property Type: Commercial Land (Service Apartment Development)
Tenure: Freehold
Land Size: 3.497 Acres
Land Category: Mixed Commercial
Title: Individual
DEVELOPMENT STATUS
KM Approved (Plot Ratio 1:4)
Building Plan Approved
Development Planning Completed
Earthwork Completed
Piling & Pile Caps Completed
Ready for Immediate Construction
DEAL STRUCTURE
Joint Venture (JV):
* Landowner entitlement: 25% of total residential units
* Plus scalable commercial units / areas
Outright Sale Price:
RM 35,000,000
Sale includes development planning, KM & building plan approvals, completed earthwork, piling & pile caps.
DEVELOPMENT POTENTIAL
Total GFA:
Residential: Approx. 572,456 sq. ft.
Commercial: Approx. 19,670 sq. ft.
Total Units:
368 Residential Units
10 Commercial Retail Units
Residential Breakdown:
* 190 Units – 2-Bedroom (996 sq. ft.)
* 171 Units – 4-Bedroom Dual-Key (1,213 sq. ft.)
* 7 Units – Luxury Penthouses (Up to 4,122 sq. ft.)
Car Parks: 829 lots (including tandem)
PRIME LOCATION – BUKIT TINGGI, BENTONG
* 35 mins to Kuala Lumpur via Karak Highway
* 5 mins to Bukit Tinggi Morning Market
* 10 mins to Janda Baik
* 20 mins to Genting Sky Avenue
* Near Bentong Tanglir Waterfall & Suria Hot Spring
INVESTMENT APPEAL
A rare ready-to-develop hilltop site with approvals and groundwork completed, offering immediate project rollout and strong ROI potential.
Contact: Irene 0***** | www.h*****
Welcome Owner Listing, if you have property for sale or rent.
Estimated mortgage
Mortgage breakdown
Est. monthly repayment
RM 0 / mo
RM 0 Principal
RM 0 Interest
Upfront costs
Total downpayment
RM 0
Downpayment
RM 0 Loan amount at 0% Loan-to-value
FAQs
The selling price for this Commercial Land is RM 35,000,000.
Bentong, Pahang.
3.49 acre.
Freehold.
Our LoanCare service can help you increase your chances of home loan approval.







